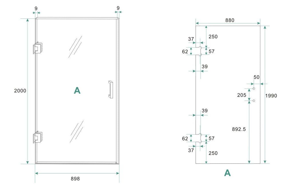
Net als bij de Less inloopdouches hebben we met de Less nisdeuren van Wiesbaden Sanitair een serie opgenomen onder de noemer: Less is more. Door gebruik te maken van 2 kleine scharnieren en een rubber D-profiel dat aansluit op de muur, zijn de muur- en aanslagprofielen van de “normale nisdeuren” vervallen. Hierdoor blijft er een groter glasoppervlak over. Het scharnier van de Less nisdeur heeft een liftende werking zodat ook met afschot in de vloer de deur gewoon geopend kan worden. Daarnaast zorgt de liftfunctie ervoor dat het afwateringsprofiel onderaan de deur minder over de grond schuurt en daardoor minder snel slijt. Deze nisdeur is omkeerbaar en kan zowel naar binnen als naar buiten worden geopend. Hij wordt geleverd inclusief metalen deurgreep. De Less nisdeur is gemaakt van gehard veiligheidsglas en met NANO-coating afgewerkt.